Pang Seng Road
Name: Pang Seng Road
Location: Singapore (Toa Payoh Planning Area)
Existing Built up: 122.81sqm (1321.9sqft)
Size: 92sqm (Principal site)
SHD: 13.34
Proposed GFA: 155.26 sqm (1671.2 sqft)
Project Start Date: 2024 May
Construction Cost : 700k
TOP / CSC: 2025 May
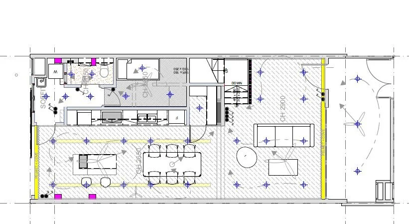
This A&A of a 2-storey + attic Terrace house with back extension exemplifies modern minimalist design, featuring a transformed sophisticated open-concept kitchen and dining area with concealed store, wc, helpers room, and serviced yard. The space is defined by its neutral color palette, premium light wood cabinetry, integrated appliances, and a streamlined countertop paired with a light-toned backsplash. Polished concrete flooring extends seamlessly to expansive glass sliding doors, creating a harmonious indoor-outdoor flow with abundant natural light.
Overall, this house embodies modern minimalist design with subtle industrial influences, emphasizing simplicity, functionality, and clean lines, while keeping the space airy and uncluttered.
ADDITIONS & ALTERATIONS
Site Overview: Envelope Control 2 Storey / 2 Storey Mixed landed
Additions & alterations to existing 2-storey Envelope control semi-detached house involving rear extension and an attic

